Beschrijving
App Joblán II, SAN PEDRO
3 bed, 2 bad en 1/1
prijsrange € 180.000,- tot € 320.000,-
Op zoek naar jouw droomhuis in het bruisende San Pedro del Pinatar? Dan zijn deze luxe beneden- of bovenwoningen precies wat je zoekt! Of je nu een jong gezin hebt, een starter bent, een oudere of een alleenstaande, dit complex biedt alles wat je nodig hebt voor comfortabel en stijlvol wonen.
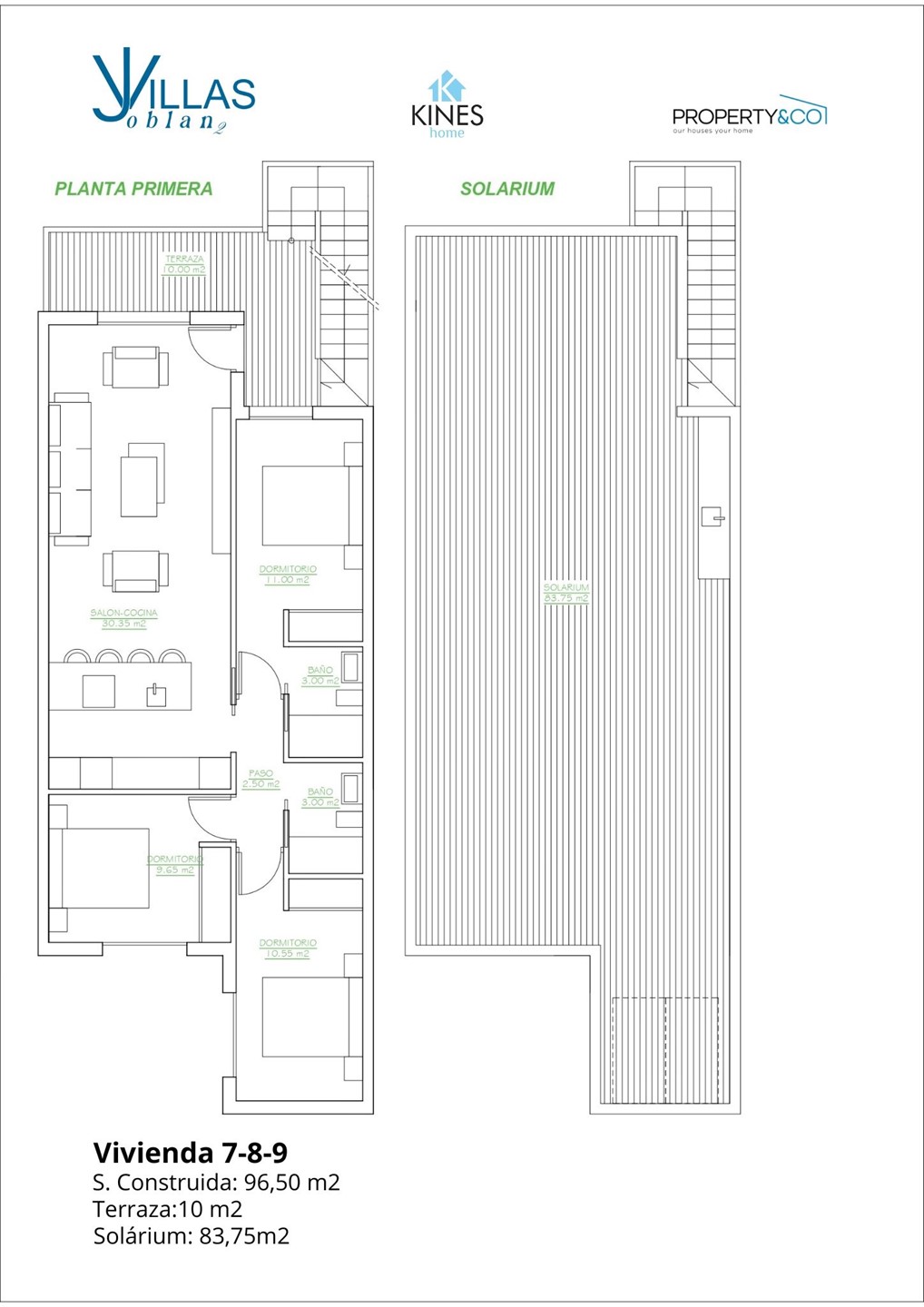
Dit complex bestaat uit 10 woningen. Vijf op de begane grond en vijf op de bovenetage mét eigen dakterras (solarium). Aan de ene hoek zijn kleinere appartementen (1 slaapkamer, 1 badkamer), de tussenwoningen hebben 3 slaapkamers en 2 badkamers en de woningen op de andere hoek zijn ruimer van opzet met ook 3 slaapkamers en 2 badkamers. De benedenwoningen hebben een eigen tuin en terras. De bovenwoningen een balkon én een dakterras (solarium).
Stap binnen en laat je verrassen door de keramische vloeren die door het hele huis en op de terrassen lopen, perfect voor een frisse en moderne uitstraling. De badkamer en keuken zijn voorzien van prachtige tegels aan de wand, terwijl de inbouwkasten met lades en witte lakdeuren een elegant tintje toevoegen.
Geniet van dubbel glas met luchtkamer en gemotoriseerde aluminium jaloezieën voor optimale zonlichtcontrole. De witte keukenmeubelen met een schiereiland zijn niet alleen stijlvol, ze komen ook compleet met een koelkast, inductie kookplaat, afzuigkap, oven, magnetron en vaatwasser - alles wat je nodig hebt om heerlijke maaltijden te bereiden.
Verwen jezelf in de badkamer met een ingebouwd badkamermeubel en verlichte spiegel, en ontspan onder de op maat gemaakte douchecabine met transparant glazen scherm. Wil je energiezuinig bezig zijn? Dan zal het elektrische boiler- en zonnepanelensysteem voor warm tapwater zeker aanspreken.
De gemeenschap beschikt over een verfrissend zwembad en een parkeerplaats per woning, terwijl de bovenwoningen een solarium (dakterras) met zomerkeuken hebben - ideaal voor zomerse avonden met vrienden en familie.
Geweldig nieuws voor liefhebbers van de Middellandse Zee, want dit complex ligt op slechts 5 minuten van de prachtige stranden van de Mar Menor. Omringd door sportfaciliteiten en diverse golfbanen, is San Pedro del Pinatar de ideale bestemming voor wie houdt van een actieve levensstijl.
Ontdek de charme van San Pedro del Pinatar, met zijn levendige stranden zoals La Puntica en Villananitos, en geniet van talloze watersporten zoals zeilen, duiken en windsurfen. Vergeet ook niet het regionale park Salinas de San Pedro del Pinatar te bezoeken, waar je kunt genieten van de vogels en de therapeutische modderbaden.
Dus, waar wacht je nog op? Dit is jouw kans om te genieten van luxe wonen in het pittoreske San Pedro del Pinatar. Neem vandaag nog contact met ons op en maak een afspraak voor een bezichtiging!
Alle genoemde prijzen zijn VANAF-prijzen, gebaseerd op de goedkoopst beschikbare woning ten tijde van publicatie. Informeer bij ons naar de actuele prijzen en beschikbaarheid.