Beschrijving
app Mirador Santa Rosalia Lake & Life - fase II en III
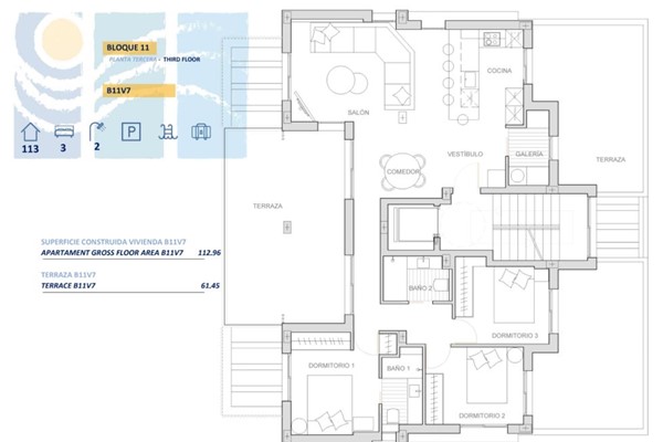
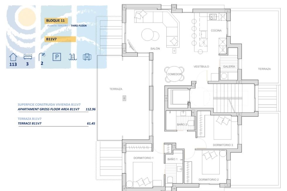
3 bed, 2 bad
NOG MAAR TWEE
Op zoek naar een nieuw thuis in het charmante Santa Rosalía? Wellicht is het Mirador appartement iets voor je! Dit nieuwbouwcomplex biedt het beste van twee werelden: een prachtig uitzicht over de omliggende bergen en de Mar Menor, gecombineerd met moderne voorzieningen en comfort.
De appartementen van Mirador Santa Rosalia zijn ontworpen met jouw comfort in gedachten. Ieder appartement beschikt over een open woon- en eetkamer met grote ramen die zorgen voor een overvloed aan natuurlijk licht en een gevoel van ruimte creëren. Met 3 ruime slaapkamers en 2 badkamers, waarvan één en-suite, biedt dit appartement alles wat je nodig hebt voor een luxe levensstijl. De moderne keuken is volledig uitgerust en voorzien van alle gemakken die je kunt wensen.
Gelegen in een rustige omgeving, maar toch op slechts enkele minuten afstand van het bruisende centrum van Los Alcázares en Torre Pacheco, biedt Mirador Santa Rosalia het beste van beide werelden. Geniet van de prachtige stranden van de Mar Menor of verken de vele restaurants, bars, supermarkten en winkels in de buurt. Voor golfliefhebbers is de ligging ideaal, met verschillende golfbanen in de directe omgeving, waaronder het Mar Menor Golf Resort op minder dan 1 km afstand.
Een absolute trekpleister van Santa Rosalia is de "Crystal Lagoon", een kunstmatig aangelegd zwemmeer van 15.000 vierkante meter groot. Het water is kristalhelder en wordt continu behandeld met geavanceerde technologieën om het fris en schoon te houden. Met omliggende stranden, tuinen en recreatiegebieden biedt de Crystal Lagoon de ideale plek om te zwemmen, kajakken, paddleboarden en heerlijk te zonnen.
Santa Rosalia is uniek in Europa vanwege de Crystal Lagoon en biedt bewoners en bezoekers een unieke zwemervaring in een veilige en gecontroleerde omgeving. Ontspan op de prachtige stranden, geniet van groene gebieden en ontdek de rijke levensstijl die deze bijzondere locatie te bieden heeft.
Ben jij op zoek naar een modern en comfortabel thuis in een rustige omgeving, maar toch dicht bij alle voorzieningen? Mis dan niet de kans om te wonen in Mirador Santa Rosalia!
Alle genoemde prijzen zijn VANAF-prijzen, gebaseerd op de goedkoopst beschikbare woning ten tijde van publicatie. Informeer bij ons naar de actuele prijzen en beschikbaarheid.