Beschrijving

Uniek Penthouse Macao Playa - LO PAGAN 
3 bed, 3 bad
Prijs vanaf € 949.900,-


Stijlvol wonen onder de Spaanse zon – Macao Playa, een unieke kans in Lo Pagán!
Stel je eens voor: elke ochtend wakker worden met het zachte geruis van golven, uitkijken over de Mar Menor en genieten van het relaxte Spaanse leven in een fris, modern appartement. Klinkt goed, toch? Goed nieuws — bij Macao Playa in San Pedro del Pinatar kan deze droom werkelijkheid worden!

De locatie: Lo Pagán – meer dan alleen zon en zee
Wie Lo Pagán zegt, zegt levensgenieter. Dit levendige, typisch Spaanse kustplaatsje — officieel een heerlijk verrassend gehucht binnen San Pedro del Pinatar — staat bekend om zijn ondiepe, warme zeewater en z’n fijne zandstranden als La Puntica en Villananitos. En eh, niet te vergeten die befaamde modderbaden! Ze zijn niet alleen super voor je huid, maar ook geliefd én gratis. Dus hup, lekker smeren en ontspannen.

Wat Lo Pagán echt uniek maakt, is de mix van gezelligheid, historie en natuur. Denk aan gezellige tapasbars rond de bekende “Curva de Lo Pagán” voor lange zomeravonden, sfeervolle lokale feestjes zoals het uitbundige Virgen del Carmen-festival in juli en het prachtige natuurpark Salinas y Arenales direct om de hoek. Hier combineren locals en toeristen moeiteloos een actieve outdoor-lifestyle met ultiem ontspannen aan het water.

Het complex: Macao Playa – exclusiviteit, comfort & uitzicht
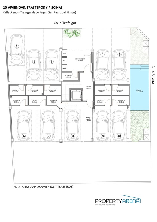
Macao Playa ligt op een heerlijke plek, letterlijk op de tweede lijn van het strand en dus op een steenworp van je dagelijkse duik in zee. Het complex bestaat uit slechts 10 appartementen, dus je woont hier kleinschalig en rustig. Naast een stijlvol gemeenschappelijk zwembad neem je eenvoudig een garageplek of berging erbij (voor maar €20.000 extra) – wel zo handig, zeker voor wie het leven graag opgeruimd en praktisch houdt.

Alle appartementen zijn volledig opgeleverd; je kunt er zó in! De sfeer is elegant en licht, met een open keuken voorzien van moderne apparatuur, handige inbouwkasten en complete badkamers. De ruime woonkamer nodigt je uit om vrienden en familie mee te laten genieten — want samen smaakt Spanje toch echt het best.

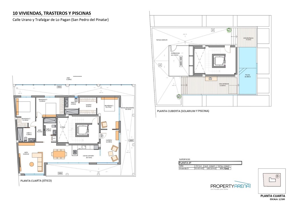
We beschrijven hier het luxe penthouse. 
Dit pareltje op de bovenste verdieping telt zelfs 3 slaapkamers en 3 badkamers, plus fantastische terrassen, een groot solarium en je eigen privézwembad. Dat is het ultieme buitenleven!

Uitzicht om bij weg te dromen
Of je nu op zoek bent naar rust of gezelligheid, vanuit elk appartement in Macao Playa geniet je van fenomenaal uitzicht. Denk aan kabbelend water, kleurrijke zonsondergangen en het levendige straatbeeld van Lo Pagán. Perfect om even alles los te laten!

Praktisch en zorgeloos investeren
Voor deze investering krijg je niet alleen een fantastisch vakantiehuis, maar ook een solide investering in één van de meest populaire regio’s van Murcia. Door het uitgesproken toeristische karakter van Lo Pagán is je appartement geliefd bij zowel vaste bewoners als vakantiegangers. Of je hier nu zelf wilt wonen, verhuren óf allebei — jij zit goed!

Waarom kiezen voor Macao Playa in Lo Pagán?
- Eigen sleutel tot het zonnige Spaanse leven
- Helemaal instapklaar: compleet met keuken én badkamers
- Dicht bij zee, winkels, restaurants en sportvoorzieningen
- Luxe voorzieningen als zwembad, privéterras, garage/berging
- Gezellige sfeer, gezonde buitenlucht en volop cultuur
- Uitstekend verhuurpotentieel

Zoek je een slimme investering, een tweede huis, of wil je gewoon elke dag het vakantiegevoel?
Wacht niet langer, want met zo’n plek zijn de mogelijkheden eindeloos. Mail of whatsapp — dan laten we je graag zien hoe bijzonder Macao Playa is. Droom jij vast van sangria op je eigen terras? Je nieuwe leven onder de zon begint hier, in Lo Pagán!

Alle genoemde prijzen zijn VANAF-prijzen, gebaseerd op de goedkoopst beschikbare woning ten tijde van publicatie. Informeer bij ons naar de actuele prijzen en beschikbaarheid.

Kenmerken