Beschrijving

Villa Jacaranda II, San Pedro
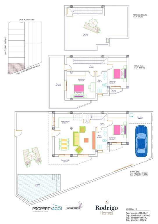
3 bed, 2 bad
prijs € 384.900,- 

Een luxe complex van 6 villa's met privézwembad en parkeerplaats voor elke woning.

Deze woningen hebben verschillende terrassen en een groot solarium, zodat u elke dag van het jaar kunt genieten van alle uren zon.
Elke woning heeft 3 slaapkamers en 2 badkamers, plus een kleedkamer in de hoofdslaapkamer. De woningen zijn ontworpen op twee niveaus plus een zonneterras op de bovenverdieping, met een eigentijdse stijl en een open concept, bestaande uit een volledig ingerichte keuken en een woon-eetkamer. 

Er zijn een paar types, prijsrange is 345.000-360.000 euro. Alle genoemde prijzen zijn VANAF-prijzen, gebaseerd op de goedkoopst beschikbare woning ten tijde van publicatie. Informeer bij ons naar de actuele prijzen en beschikbaarheid.

De ontwikkeling is gelegen in San Pedro del Pinatar (Murcia), omgeven door alle diensten en sportfaciliteiten, in de buurt van verschillende golfbanen, plus 30 minuten rijden naar de luchthaven van Murcia en 2,5 km van Mar Menor en de stranden van de Middellandse Zee.

De woningen zullen voldoen aan de hoogste eisen en zullen worden uitgerust met:

- Prive-zwembad met LED-verlichting en buitendouche.
- Keuken compleet ingericht en voorzien van oven en magnetron in zuil, geïntegreerde vaatwasser en koelkast, keramische kookplaat en afzuigkap.
- LED-verlichting: binnen in het pand (eetkamer, keuken, gangen en badkamers), maar ook buiten.
- Gemotoriseerde zonwering in woonkamer en slaapkamer.
- Kleedkamer in de hoofdslaapkamer, met planken, lades, broekrails en spiegel.
- Gevoerde kledingkasten met lades.
- Volledig ingerichte badkamers met badmeubel, hangend toilet met ingebouwde tank, spiegel, regendouche en doucheschermen.
- Pre-installatie voor vloerverwarming in badkamers
- Pre-installatie voor geleide airconditioning.
- Pre-installatie voor zonnepanelen.
- Zonneterras.
Parkeerplaats.

De genoemde prijs is een 'vanaf-prijs', gebaseerd op de goedkoopst beschikbare woning. De verwachte oplevering is in juli 2025.

Kenmerken