Beschrijving

villa Martina - Hacienda del Álamo
3 bed, 2 bad

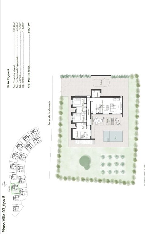
Vrijstaande luxueuze villa op groot perceel. Meerdere mogelijkheden, dus de getoonde afbeeldingen en plattegronden zijn slechts voorbeelden. 
Prijsrange: €320.000-€335.000

Droomvilla in regio Murcia. Betreed de luxueuze wereld van Villa Martina in het prachtige Hacienda del Álamo, een vrijstaande villa die sereniteit en grandeur combineert op een weelderig perceel van meer dan 550 m2.

Luxe Leven op Maat. Deze betoverende villa wordt voor u gebouwd en biedt 3 slaapkamers en 2 badkamers voor optimaal comfort en stijlvol wonen. Ervaar een oase van rust in het hart van Fuente Alamo, slechts een korte rit verwijderd van de glinsterende wateren van de Mar Menor en de Middellandse Zee.

Golfparadijs voor de Enthousiastelingen. Verwen uzelf met de weelderige groene omgeving van de Hacienda del Álamo Golf Resort, een meesterwerk ontworpen door de legendarische Dave Thomas. Sla een balletje op de 18-holes golfbaan die zich uitstrekt over 6724 meter en geniet van de uitdaging van deze prachtige baan, omgeven door 8 schilderachtige meren en weelderige palmbomen.

Eindeloos Vermaak en Ontspanning. Van tennisbanen tot voetbalvelden, van culinaire geneugten tot ontspannende spa-behandelingen, het resort biedt een overvloed aan faciliteiten om elke levensgenieter te verrukken. Laat uzelf verwennen in het 4-sterren Spa Hotel of ontdek het authentieke Spaanse dorpsleven met charmante winkels, bars en restaurants.

Ultieme Mix van Comfort en Avontuur. Met een fitnesscentrum, uitgestrekte tuinen, een sfeervol terras en een gezellige lounge, biedt het resort een smeltkroes van ontspanning en verjonging. Beleef adembenemende zonsondergangen met uitzicht op de majestueuze bergen van Carrascoy en laat de dagelijkse stress achter u.

Perfecte Haven voor Luxe Liefhebbers. Ontsnap aan de routine en omarm de weelde en ruimte die Villa Martina te bieden heeft. Laat deze kans niet liggen om uw levensstijl naar nieuwe hoogten te tillen in deze idyllische setting tussen de prachtige stranden, pittoreske stadjes en gastronomische verleidingen, allemaal binnen handbereik.

Uw Eigen Paradijs. Betreed dit exclusieve domein van luxe en vrijheid, waar elk aspect van comfort en verfijning nauwkeurig is overwogen. Villa Martina wacht op u om een nieuw hoofdstuk te beginnen in het mediterrane paradijs van Hacienda del Álamo Golf & Spa Resort. Ervaar het beste dat het leven te bieden heeft in deze meesterlijk vormgegeven villa. 

Maak uw dromen werkelijkheid en omarm de levensstijl die u verdient in het elegantie van Villa Martina.

Alle genoemde prijzen zijn VANAF-prijzen, gebaseerd op de goedkoopst beschikbare woning ten tijde van publicatie. Informeer bij ons naar de actuele prijzen en beschikbaarheid.

Kenmerken